Мы используем куки-файлы. Соглашение об использовании
Обновлено: вчера, 18:25
Только на Циан

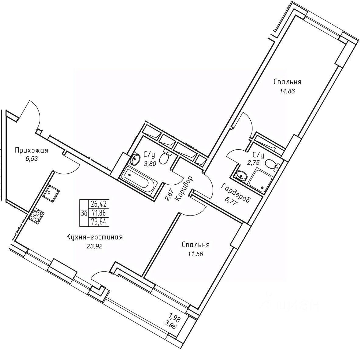
Продается 3-комн. квартира, 73,84 м²

Общая площадь73,84 м²
Этаж5 из 16
Год сдачи2027
ДомНе сдан
Продаётся 3-комнатная квартира в строящемся доме (Дом 15), срок сдачи: III-кв. 2027, общей площадью 73.84 кв.м., на 5 этаже. Уверенность в застройщике это то, что отличает наш жилой комплекс от многих других. Проектом занимается известный, добросовестный и опытный застройщик - ООО строительная компания "Прометей", работающий на якутском рынке более 17 лет и выполнивший за свою деятельность много хороших и достойных проектов. Владея собственным бетонным заводом, компания сама выпускает строительные материалы: бетон всех марок, цементные строительные растворы, полистерол, конструкции, а также имеет весь комплект строительной техники от кранов всех марок и типов до бетононасосов. Входит в тройку самых крупных строительных организаций Республики. Уставной капитал составляет 160 млн. рублей. Одним словом, ЖК "Прометей" - это жилье, которое делает проживание комфортным, гармоничным и очень уютным. А прогулки по парковой зоне окажутся приятным дополнением к проживанию.

О квартире

Тип жилья

Новостройка

Общая площадь

73,84 м²

Высота потолков

2,8 м

О доме

Количество лифтов

2 пассажирских

Тип дома

Монолитно-кирпичный

Пандус

Есть

Похоже на то, что вы ищете?
Ипотечный калькулятор
  • Базовая
  • Семейная
  • ИТ-ипотека
  • 20%
  • 30%
  • 40%
  • 50%
лет
  • 10 лет
  • 20 лет
  • 30 лет
Загружаем предложения от застройщика и банков

Расположение

Корпус проверен наш.дом.рф
Обновлено 6 апреля 2026
  • Нет в реестре проблемных объектов
  • Застройщик не банкрот
  • Есть эскроу счёт
  • Актуальные фото стройки

Ещё квартиры в жилом комплексе

482 квартиры в продаже · Сдача в 3—4 кв. 2027, есть сданные
Консультант
Циан
  • 5 лет 11 месяцев на Циане
  • 25775 объявлений
  • 11 002 160 ₽
    Цена за метр
    149 000 ₽/м²
    Условия сделки
    долевое участие (214-ФЗ)
    Консультант
    Циан