Мы используем куки-файлы. Соглашение об использовании
Обновлено: 16 апр, 23:55
Только на Циан

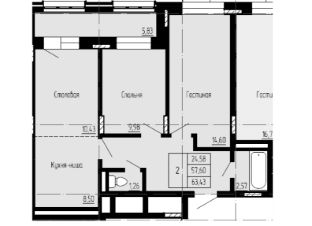
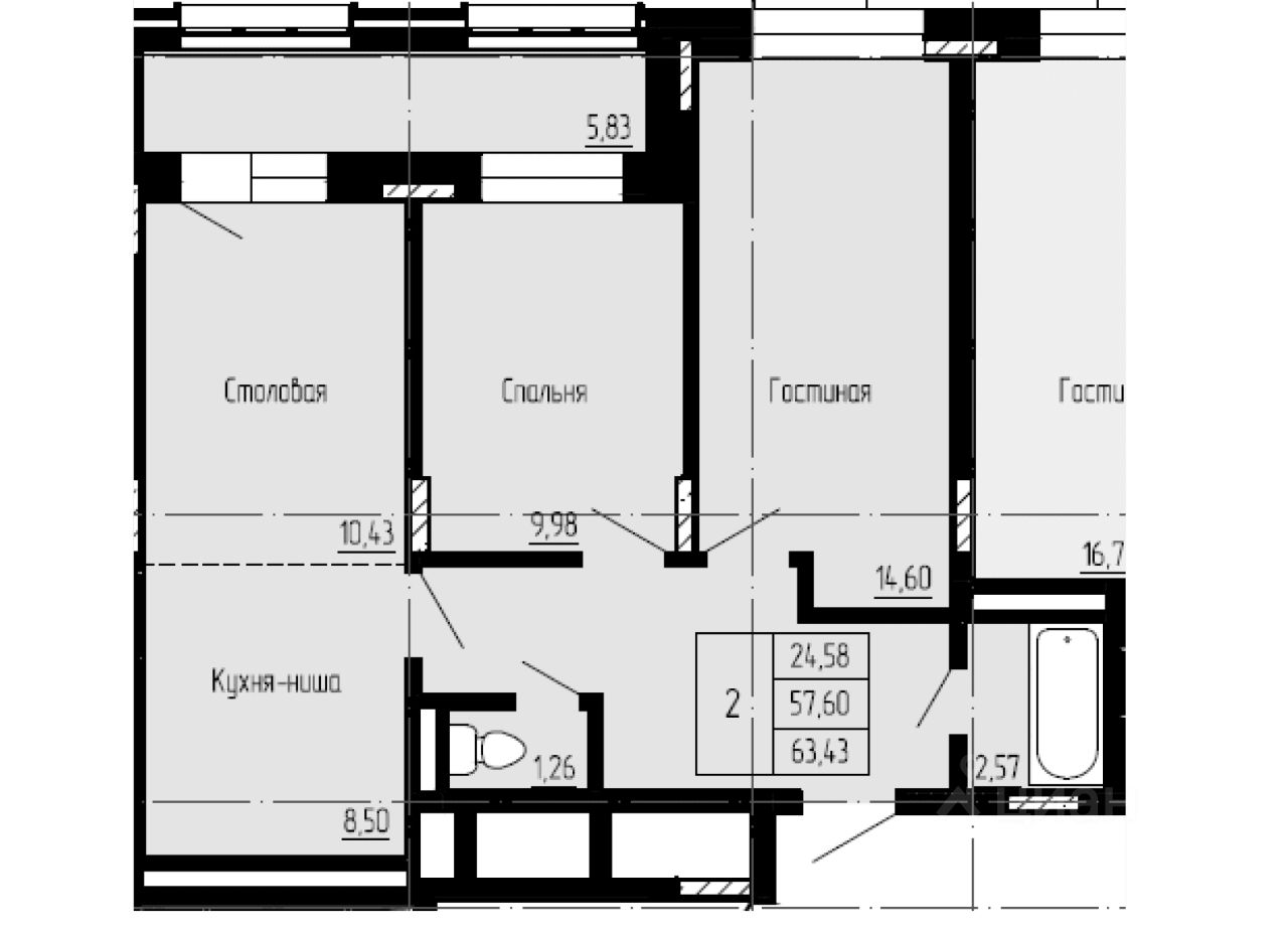
Продается 2-комн. квартира, 63,43 м²

Общая площадь63,43 м²
Этаж10 из 16
Год сдачи2026
ДомНе сдан
Продаётся 2-комнатная квартира в строящемся доме (Данилова, 11), срок сдачи: III-кв. 2026, общей площадью 63.43 кв.м., на 10 этаже. Новый жилой комплекс от Специализированного застройщика "СТРОЙ-ИНДУСТРИЯ 2" расположен по адресу: г. Якутск по ул. Семёна Данилова.

О квартире

Тип жилья

Новостройка

Общая площадь

63,43 м²

Высота потолков

2,75 м

О доме

Количество лифтов

2 пассажирских

Тип дома

Монолитно-кирпичный

Похоже на то, что вы ищете?
Ипотечный калькулятор
  • Базовая
  • Семейная
  • ИТ-ипотека
  • 20%
  • 30%
  • 40%
  • 50%
лет
  • 10 лет
  • 20 лет
  • 30 лет
Загружаем предложения от застройщика и банков

Расположение

Корпус проверен наш.дом.рф
Обновлено 15 апреля 2026
  • Нет в реестре проблемных объектов
  • Застройщик не банкрот
  • Есть эскроу счёт
  • Актуальные фото стройки

Ещё квартиры в жилом комплексе

49 квартир в продаже · Сдача в 3 кв. 2026
Консультант
Циан
  • 5 лет 11 месяцев на Циане
  • 28877 объявлений
  • 9 831 650 ₽
    Цена за метр
    155 000 ₽/м²
    Условия сделки
    долевое участие (214-ФЗ)
    Консультант
    Циан