Мы используем куки-файлы. Соглашение об использовании
Обновлено: сегодня, 17:40
Только на Циан

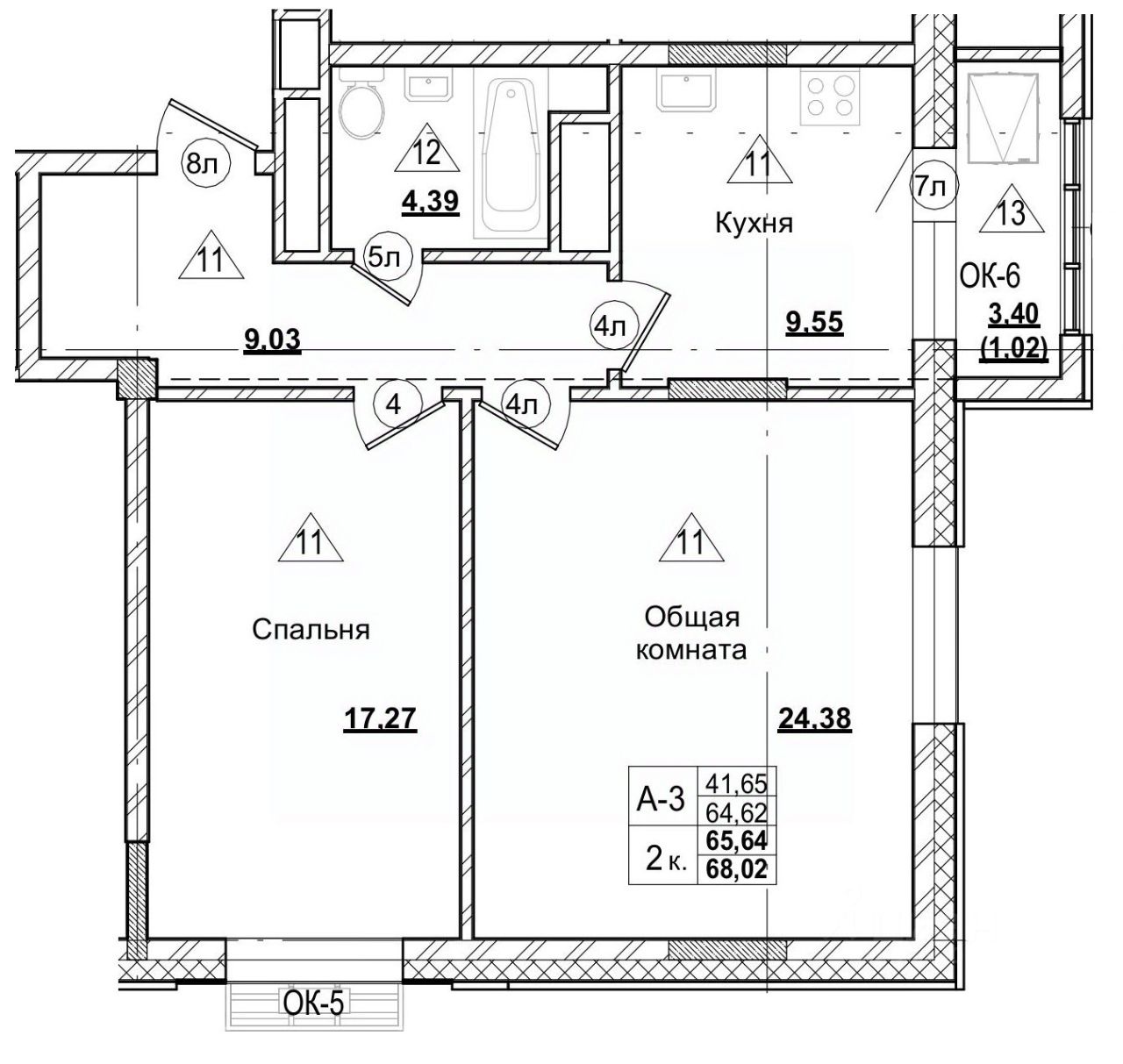
Продается 2-комн. квартира, 65,64 м²

  • ВТБ
    ПСБ
    Совкомбанк
    Альфа-Банк
    Уралсиб
    Банк ДОМ.РФ
    Т-Банк
    МКБ
    Абсолют Банк
    Реальные ипотечные ставки от 9 банков - 5,75% на новостройки, 16,9% на вторичку
    Перейти в сервис
Общая площадь65,64 м²
Этаж13 из 16
Год сдачи2027
ДомНе сдан
Продаётся 2-комнатная квартира в строящемся доме (блок Б), срок сдачи: IV-кв. 2027, общей площадью 65.64 кв.м., на 13 этаже. Новый жилой комплекс "Город в парке" от Специализированного застройщика "СТК-2023" расположен в г. Якутск по ул. Тракт Вилюйский 4км.

О квартире

Тип жилья

Новостройка

Общая площадь

65,64 м²

Высота потолков

2,7 м

О доме

Количество лифтов

2 грузовых

Парковка

Подземная

Пандус

Есть

Похоже на то, что вы ищете?
Ипотечный калькулятор
  • Базовая
  • Семейная
  • ИТ-ипотека
  • 20%
  • 30%
  • 40%
  • 50%
лет
  • 10 лет
  • 20 лет
  • 30 лет
Загружаем предложения от застройщика и банков

Расположение

Корпус проверен наш.дом.рф
Обновлено 9 апреля 2026
  • Нет в реестре проблемных объектов
  • Застройщик не банкрот
  • Есть эскроу счёт
  • Актуальные фото стройки

Ещё квартиры в жилом комплексе

245 квартир в продаже · Сдача в 4 кв. 2027
Консультант
Циан
  • 5 лет 11 месяцев на Циане
  • 40191 объявление
  • 10 896 240 ₽
    Цена за метр
    166 000 ₽/м²
    Условия сделки
    долевое участие (214-ФЗ)
    Консультант
    Циан