155 000 ₽/м²
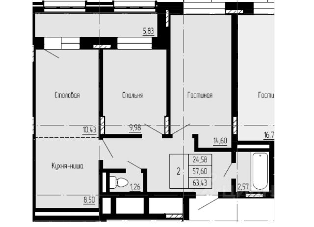
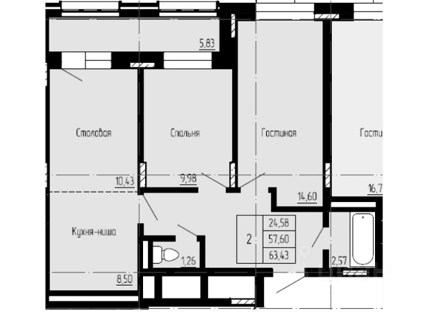
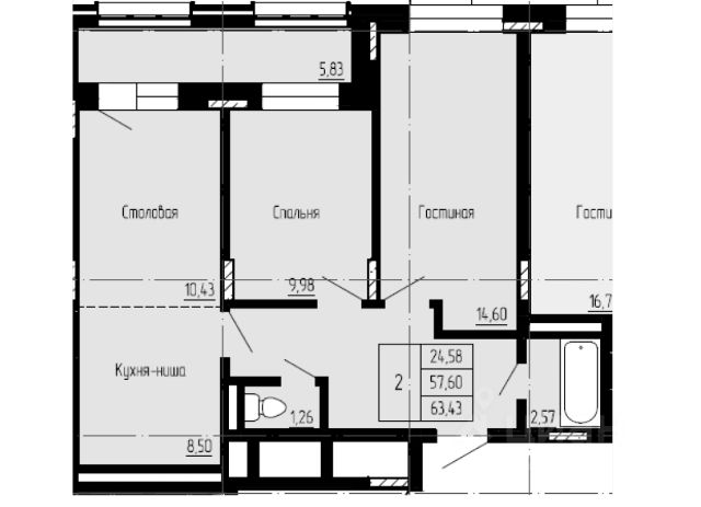
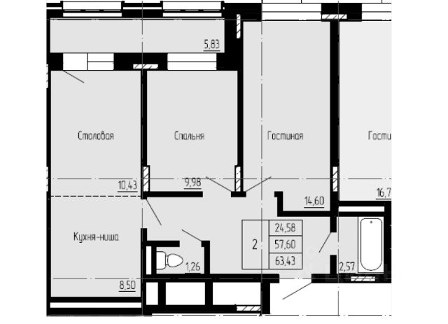
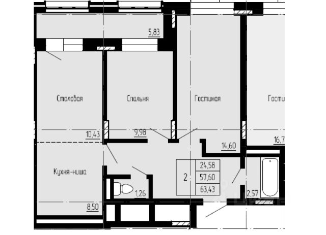
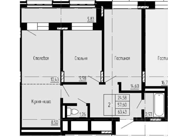
Продаётся 2-комнатная квартира в строящемся доме (Данилова, 11), срок сдачи: III-кв. 2026, общей площадью 63.43 кв.м., на 15 этаже. Новый жилой комплекс от Специализированного застройщика "СТРОЙ-ИНДУСТРИЯ 2" расположен по адресу: г. Якутск по ул. Семёна Данилова.






















































































