Хорошая цена
8 250 000 ₽
113 014 ₽/м²
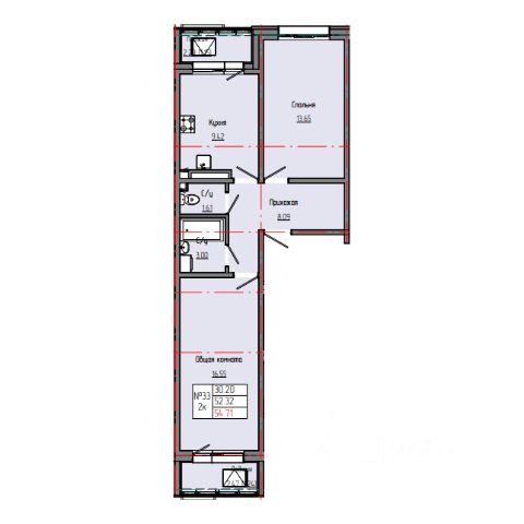
В продаже 3-х комнатная квартира 73м2 по улице Кузьмина 29/2, в Гагаринском округе г.Якутска (район Аэропорта).
5 этаж 4х подъездного дома. Перепланировки отсутствуют.
В квартире все комнаты изолированные, не граничащие друг с другом.
Высота потолков 2,7м (побелка). Пол линолеум/ламинат. Окна пластик/дерево.
Комната (19,3м2) имеет выход на закрытую лоджию (4м2).
Кухня 11м2 со встроенным кухонным гарнитуром, плитой, эл.духовкой, эл.вытяжкой,холодильником, обеденным гарнитуром.
Ванна/туалет раздельные (кафель). В туалете установлена стиральная машинка.
Есть встроенный шкаф под бытовую химию.
Окна 2х комнат (19,3 и 14,8м2) и кухни выходят на восточную сторону (вид во двор) и комната(12,7м2) на запад (улица).
За квартирой закреплено помещение под кладовку , которое находится на этаже.
Квартира оборудована центральным отоплением, газ, центральное ГВС, ХВС, канализация. Установлены счётчики электроэнергии (день/ночь), холодной и горячей воды (поверка до 2029г.)
Домофон, входная зона в подъезд и автостоянка под видеонаблюдением. Автостоянка придомовая. Во дворе детская и спортивная площадки (ввод в эксплуатацию 2024г),покрытие искусственный газон, озеленение.
В шаговой доступности муниципальные и коммерческие детские сады, школы, спорт комплекс "Стерх", к осени начнёт функционировать новая инновационная Смарт-поликлиника, ДК "Авиатор" с кинозалом, музеем, студиями развития для детей, Храм всех святых, парк "Победа".
Удобная транспортная развязка: от дома до автострады 460м. (ост.Севастопольская) -автобусы 4, 12, 14, 20, 41, 100, 102, 209; до.ул.Курнатовского 460м - автобусы 2, 3, 5. В любую точку города и пригородов без пересадок. За домом остановка автобуса 12.
Соседи уважают личные границы, в основном семейные пары. Есть общий чат для решения вопросов. Ремонт косметический, но у вас появляется отличная возможность воплотить свои предпочтения и идеи в приобретаемом жилье.
Код пользователя: 147132
Номер в базе: 7698172







































































